1. Accueil
  2. >
  3. Acheter
  4. >
  5. Vente Appartement Colombes 3 Pièces 61 m²
appartement 3 Pièces en vente sur COLOMBES (92700)

Colombes (92700) Vente - appartement - 61 m² - 3 Pièces

320 000 €
  • 61 m²
  • 3 Pièces
  • 2 Chambres
  • 1 Salle(s) de bain
  1. Accueil
  2. >
  3. Acheter
  4. >
  5. Vente Appartement Colombes 3 Pièces 61 m²
Vente Appartement Colombes 3 Pièces 61 m²
Réf. OP2-079

Un charmant 3 pièces avec vue dégagée !

OPA Immobilier vous présente ce charmant appartement, idéalement situé à proximité de la gare LA GARENNE-COLOMBES.

Niché au 4ème étage d'un immeuble ancien récemment ravalé et desservi par un ascenseur, ce bien offre un double séjour (possible de faire une 2ème chambre) lumineux plein sud sans vis-à-vis avec une vue imprenable sur La Défense, une spacieuse chambre, une cuisine séparée, une salle de bain et des toilettes indépendantes.

Des travaux de rafraîchissement sont à prévoir, mais les fenêtres en double vitrage sont déjà en place.

Vous serez séduit par le cachet de l'ancien, avec parquet, moulures et cheminées, ainsi que la belle hauteur sous plafond.

Une cave complète cette propriété.

N'attendez plus pour organiser une visite!

    Principal

  • Type de bien : appartement
  • Ville : Colombes (92700)
  • Quartier : GARE LA GARENNE- COLOMBES
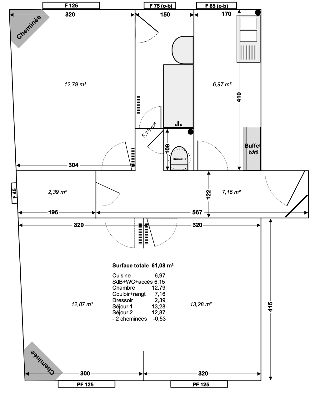
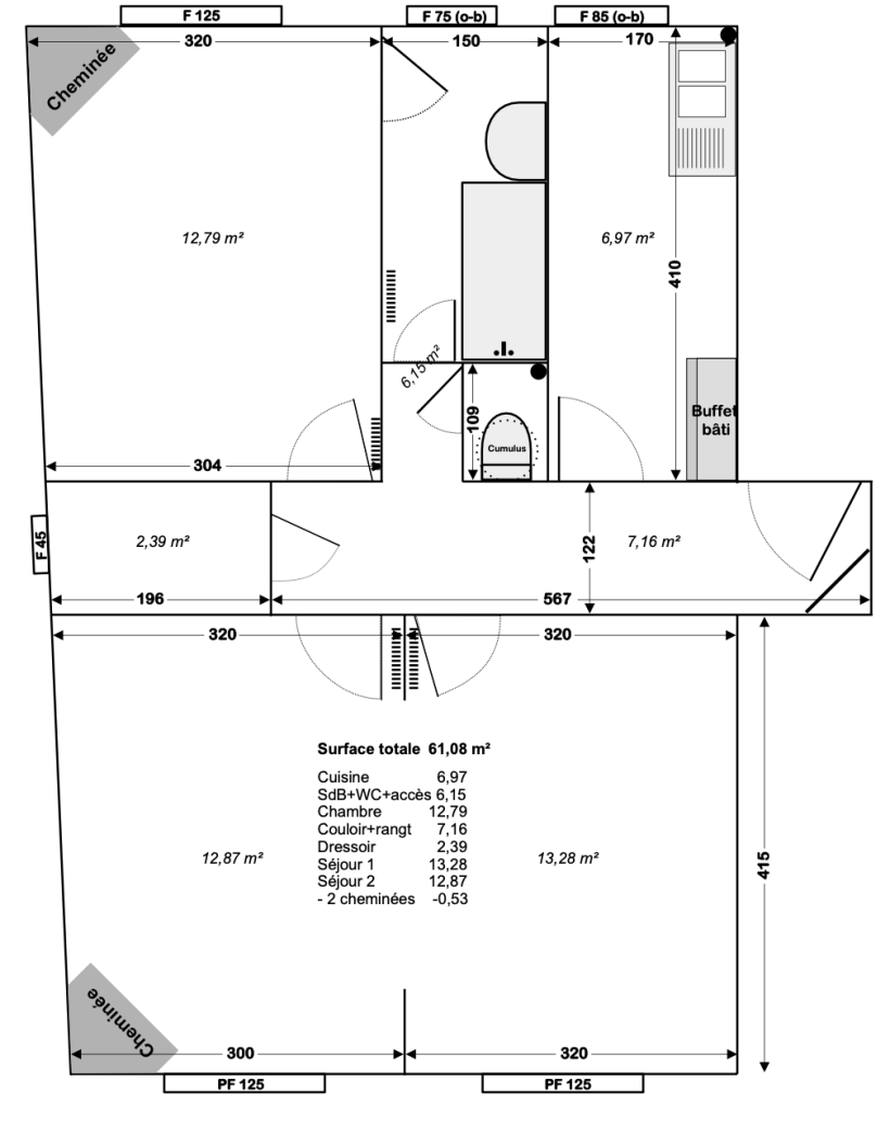
  • Surface : 61 m²
  • Pièces : 3
  • Chambres : 2
  • Etage : 4 / 5

    Pièces

  • 1 cuisine
  • 1 entrée
  • 1 séjour
  • 2 chambres
  • 1 dressing
  • 1 salle de bains
  • 1 WC
  • 1 cave

    En savoir +

  • Exposition : sud-ouest
  • Vue : sur cour, sur rue, dégagée, sans vis-à-vis


  • Année de construction : 1900
  • Ascenseur : Oui
  • Chauffage : collectif, convecteur, fuel


  • A proximité : Centre ville, , Parc, Rue commerçante, Zone industrielle
  • Transport : Autoroute, Bus, Gare, Tramway




  • En copropriété : 20 lots
  • Montant moyen annuel de la quote-part de charges courantes : 2 928 €.
Interlocuteur
Ilan SEBAG
Nous contacter

Les informations recueillies sur ce formulaire sont enregistrées dans un fichier informatisé par la société OPA Immobilier pour la gestion et le suivi de votre demande. Conformément à la loi "Informatique et liberté", vous pouvez exercer votre droit d'accès aux données vous concernant et les faire rectifier en contactant : OPA Immobilier, correspondant : "Informatique et libertés" 27 rue Saint-Ferdinand 75017 Paris ou à agence@opa-immobilier.com, en précisant dans l'objet du courrier "Droit des personnes" et en joignant la copie de votre justificatif d'identité.

¹ Nous vous informons de l’existence de la liste d'opposition au démarchage téléphonique "BLOCTEL" sur laquelle vous pouvez vous inscrire (bloctel.gouv.fr).

Ce site est protégé par reCAPTCHA, les règles de Confidentialité et les Conditions d'Utilisation de Google s'appliquent.

appartement 3 Pièces en vente sur COLOMBES (92700)
appartement 3 Pièces en vente sur COLOMBES (92700)
appartement 3 Pièces en vente sur COLOMBES (92700)
appartement 3 Pièces en vente sur COLOMBES (92700)
appartement 3 Pièces en vente sur COLOMBES (92700)
appartement 3 Pièces en vente sur COLOMBES (92700)
appartement 3 Pièces en vente sur COLOMBES (92700)
appartement 3 Pièces en vente sur COLOMBES (92700)
appartement 3 Pièces en vente sur COLOMBES (92700)
appartement 3 Pièces en vente sur COLOMBES (92700)
appartement 3 Pièces en vente sur COLOMBES (92700)
appartement 3 Pièces en vente sur COLOMBES (92700)